Apêndice
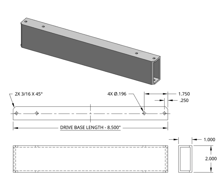
Dimensões do Tubo do Frame
O módulo swerve foi projetado para ser montado em um chassi construído com tubo retangular de 2” x 1”. Cada membro do frame (normalmente quatro no total) precisa ter as seguintes características em cada extremidade: • Dois furos passantes verticais de 5mm para fixação dos módulos swerve. • Um chanfro de 3/16” para permitir a passagem da roda.
Tubos já perfurados, que precisam apenas ser cortados no comprimento correto e chanfrados, estão prontamente disponíveis em diversos fornecedores, incluindo a AndyMark.
Consulte o desenho a seguir para verificar as dimensões do membro do frame, a localização dos furos de montagem e a posição dos chanfros.
